AMB UNA INVERSIÓ DE 457.181,27 €
L’Ajuntament de Meliana ha iniciat la rehabilitació del nou edifici municipal que allotjarà l’àrea de Serveis Socials, entre altres serveis. L’actuació es troba dins del programa Reconstruïm Pobles de la Conselleria d’Habitatge i Arquitectura Bioclimàtica, que aporta una subvenció de 300.000 € per a la rehabilitació, a més del cost de la redacció del projecte i de la direcció de les obres que ja va finançar en 2021. El cost total de la intervenció és de 457.181,27 € i està a càrrec de l’empresa SOGESER Facility Services, SL.
Per a l’alcalde i responsable de l’àrea d’Urbanisme, Josep Riera: “per a l’Ajuntament és molt important poder comptar amb un nou edifici municipal per als serveis administratius que, en aquest cas, puga donar resposta a les necessitats dels Serveis Socials municipals, especialment després de l’impuls als diferents programes de l’àmbit i de la incorporació de nous perfils tècnics com a conseqüència del desplegament de la nova llei de Serveis Socials de 2019”. Amb aquesta finalitat, l’Ajuntament ja va adquirir al 2020 l’edifici dels antics Salons Meliana, al carrer Ramón y Cajal, amb una inversió de 301.768 €.






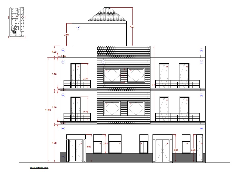
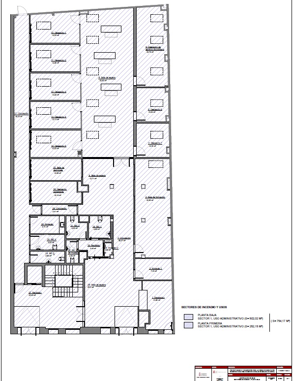
L’actuació, en una primera fase, s’està realitzant a la planta baixa i a la primera planta. A la planta baixa, uns 500 m2, s’ubicaran les dependències dels Serveis Socials municipals: despatxos, zones d‘espera, sales de reunió, espais d’atenció, sala d’actes, l’espai de recepció i d’administració, l’arxiu, l’ascensor i els lavabos. Com destaca el primer edil: “es tracta d’un espai pensat per a les persones usuàries i també per al personal tècnic i administratiu que hi treballarà. Un dels aspectes que més s’ha tingut en compte és la manera de donar llum natural a tot l’espai”. Amb aquesta finalitat es descobrirà la nau de l’antiga embotelladora que hi havia a l’edifici a mitjan del segle passat i s’instal·laran diferents claraboies.
L’altre àmbit d’actuació és la primera planta, uns 233 m2, que actualment té una disposició de dos habitatges i que, amb algunes remodelacions, es mantindran. El més antic, que encara conserva el paviment de mosaic Nolla en molt bon estat, s’adequarà per a traslladar-hi el Jutjat de Pau i alguns serveis complementaris que s’estan posant en marxa, com ara Justiprop, la justícia pròxima, o Mediaprop, el servei de mediació. Respecte de l’altre habitatge, més modern i en bon estat, la previsió és generar un espai de col·laboració amb ASID Horta Nord, l’Associació per a la Integració de les Persones amb Diversitat Psíquica.
Finalment, Riera conclou: “per a fases posteriors encara disposem de la segona planta d’aquest edifici, 233 m2; i tot el solar de darrere, de 854 m2, amb entrada pel carrer Vicari Martí, on el planejament urbanístic permet la construcció d’un edifici de tres alçades. Tot un espai que permet pensar en un important recurs públic de serveis a la ciutadania i de reordenació dels serveis municipals”. L’adquisició d’aquest solar es feu en el 2021 per un import de 296.261,81 €. Al llarg dels últims anys, l’Ajuntament de Meliana ha fet un important esforç inversor per a l’adquisició de terrenys i immobles amb la finalitat de poder ampliar les dotacions públiques i escometre les infraestructures i els vials necessaris per al desenvolupament urbà. En conjunt, un augment molt important del patrimoni municipal.


